Are you interested in inspecting this property?
Get in touch to request an inspection.
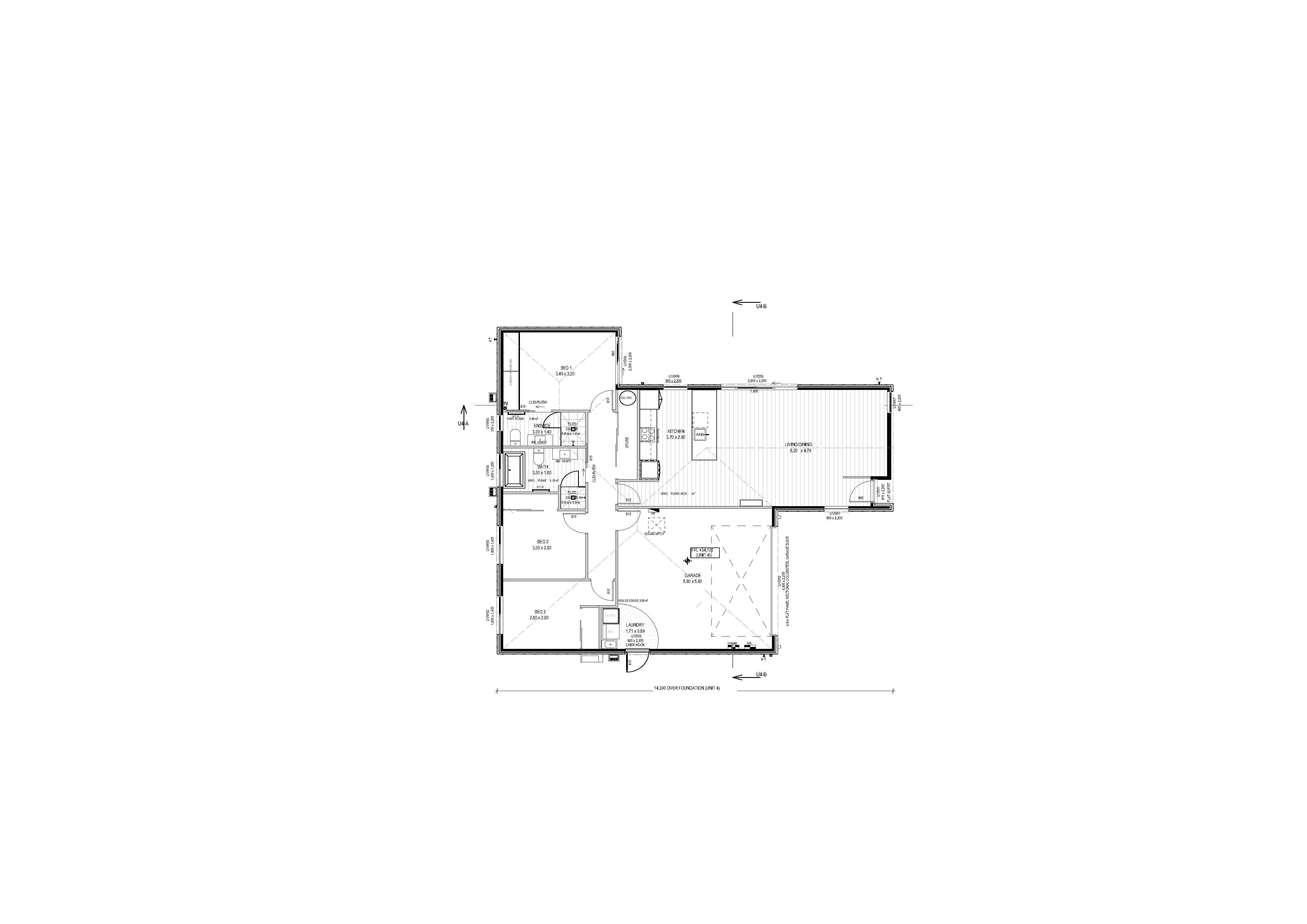
House for Sale in Rolleston
New Year New Home!
- 3 Beds
- 2 Baths
- 2 Cars
Architecturally designed newbuild located in the fast selling Broadfield Grange subdivision, just minutes from Rolleston town centre and a short walk to the local Primary School and park making it a great place to raise a family or commute daily to Christchurch City.
Features:
147m2 Floor area (approx.)
300m2 Land Area approx ( pending subdivision approval)
Open plan living/dining - Seamlessly designed for everyday living and entertaining
Slider leading out to private patio, overlooking the easy-care section
Master with ensuite incl. oversized shower
Main family bathroom with toilet
Recessed laundry space in garage
Landscaping includes driveway, patios, top soil and seeded grass
Completing this package a double internal access garage
• For more information or to arrange a private viewing, please contact Caine Hopcroft on 0273301002 or Holly Partridge on 0277771270
- Electric Hot Water
- Open Plan Kitchen
- Standard Kitchen
- Modern Kitchen
- Open Plan Dining
- Separate Shower
- Ensuite
- Combined Bathroom/s
- Electric Stove
- Double Garage
- City Sewage
- Town Water
- Street Frontage
See all features
- Extractor Fan
- Rangehood
- Dishwasher
- Fixed Floor Coverings
- Cooktop Oven
- Light Fittings
RLL32671
147m²
2 garage spaces
3
2
Agents
- Loading...
- Loading...
Loan Market
Loan Market mortgage brokers aren’t owned by a bank, they work for you. With access to over 20 lenders they’ll work with you to find a competitive loan to suit your needs.
